
建築中
長岡市新保4丁目
新築(建売住宅)
長岡市新保4丁目15-6
物件の概要
- 物件名
- 長岡市新保4丁目 新築(建売住宅)
- 構造
- 木造合金メッキ鋼板葺2階建
- 販売価格
- 2,980万円(税込)
- 種類
- 居宅
- 所在地
- 長岡市新保4丁目1446番14
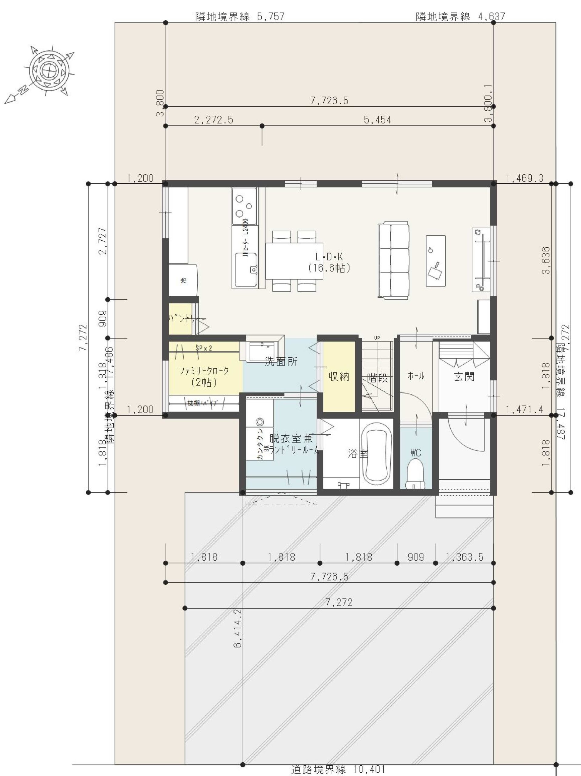
- 建物面積
- 92.54㎡(27.99坪)
- 地目
- 宅地
- 間取り
- 3LDK
- 土地面積
- 181.92㎡(55.03坪)
- 築年月
- 令和8年7月完成予定
- 用途地域
- 第一種低層住居専用地域
- 設備
- 電気・水道・都市ガス・公共下水
- 建ぺい率
- 50%
- 学区
- 富曽亀小学校・東北中学校
- 容積率
- 80%
- 取引態様
- 売主
- 接道
- 北西側:市道 8.0m(消雪パイプあり)
- 都市計画区分
- 市街化区域
- 物件番号
- 2022012230448
- 最終更新日
- 2026年03月11日
- 最寄り駅/アクセス
JR信越線 北長岡駅 約1,300m(徒歩17分)
バス停 中越高校前 約180m(徒歩3分)
- 担当者
詳細はお気軽にお問い合わせください。
担当:沼田
携帯:070-8449-3715
Email:numata@ichidai-k.co.jp
- 特記事項
-
・絶対高さの制限:10m
・外壁後退:1m
・第一種高度地区
・22条指定区域
※自社売主物件につき仲介手数料不要!
※新築住宅瑕疵保険加入。「新築住宅瑕疵保険は新築住宅の品質問題に備えた
保険です。安心して新築住宅を購入できる保障として重要です。」
※繰り返しの地震に強い「制震」住宅 制震ダンパーMAMORYを採用しています。
「一代工務店の建売住宅は、「マモリー」制震技術を採用し、地震の揺れを大幅に
軽減して、大切な家族を守るお手伝いをします。」
※BELS/建築物省エネ基準適合認定書あり
「BELSは、建物の省エネ性能を評価・表示する制度です。
物件のエネルギー効率を一目で確認でき、省エネライフの参考にすることが
できます。」
※一代工務店の建売住宅は、 土地・建物・消費税・外構工事・照明器具
全てを含んだ完成価格表示です。
≪周辺環境≫
◆幼稚園・保育園・学校
富曽亀小学校…約550m(徒歩7分)
東北中学校…約1300m(徒歩17分)
新保保育園…約400m(徒歩5分)
鵬幼稚園…約650m(徒歩9分)
◆お買い物
原信新保店…約250m(徒歩4分)
ドラッグトップス新保店…350m(徒歩5分)
セブンイレブン長岡永田店…約500m(徒歩7分)
ローソン新保店…約500m(徒歩7分)
◆交通
バス停 中越高校前…約180m(徒歩3分)
★カーナビ入力:長岡市新保4丁目15-6★
【建築確認番号:NK第25長00846号】
※物件掲載内容と現況に相違がある場合は現況を優先と致します。
建売住宅とは|注文住宅・分譲住宅との違いやメリット・デメリットを解説
長岡市で購入するなら建売住宅or中古住宅or注文住宅?特徴・価格相場・選び方を紹介

担当から一言
●スーパーやドラッグストアが徒歩圏内でお買い物に便利な立地です♪
●富曽亀小学校、東北中学校区の新築3LDK♪
●広々とした駐車スペースは3台並列駐車できます。
●前面道路には消雪パイプも完備で冬も安心!
●1階2階にウォークインクローゼット完備!充実した収納スペース。
●ガス衣類乾燥機「乾太くん」を設置!冬場や花粉の季節の洗濯ストレスを軽減します。
・いくらかかるのか知りたい・・・
・まだ探し始めたばかりなのでまずは話だけ・・・
・自分の希望通りの間取りがまだよく決まっていない・・・
・ローンについて聞いてみたい・・・
どんなご要望でも何なりとお申し付けくださいませ!
お問い合わせ心よりお待ちしております!

































<令和8年7月完成予定>
自社売主物件につき仲介手数料不要!
ZEH Oriented住宅
家族3~4人向け/3LDK
LDK16.6帖/対面キッチン
IHヒーター/3口コンロ
バス1坪以上/オートバス
LDKエアコン設置/室内物干しスペース
ファミリークローク/ウォークインクローゼット
Low-E複層ガラス/玄関北西向き
24時間換気システム/制震ダンパー/地盤調査済
駐車場3台分/北西側:市道 8.0m(消雪パイプあり)
富曽亀小学校/東北中学校