
建築中
長岡市中島1丁目
新築(建売住宅)
長岡市中島1丁目6-5
物件の概要
- 物件名
- 長岡市中島1丁目 新築(建売住宅)
- 構造
- 木造合金メッキ鋼板葺2階建
- 販売価格
- 2,780万円(税込)
- 種類
- 居宅
- 所在地
- 長岡市中島1丁目291番20
- 建物面積
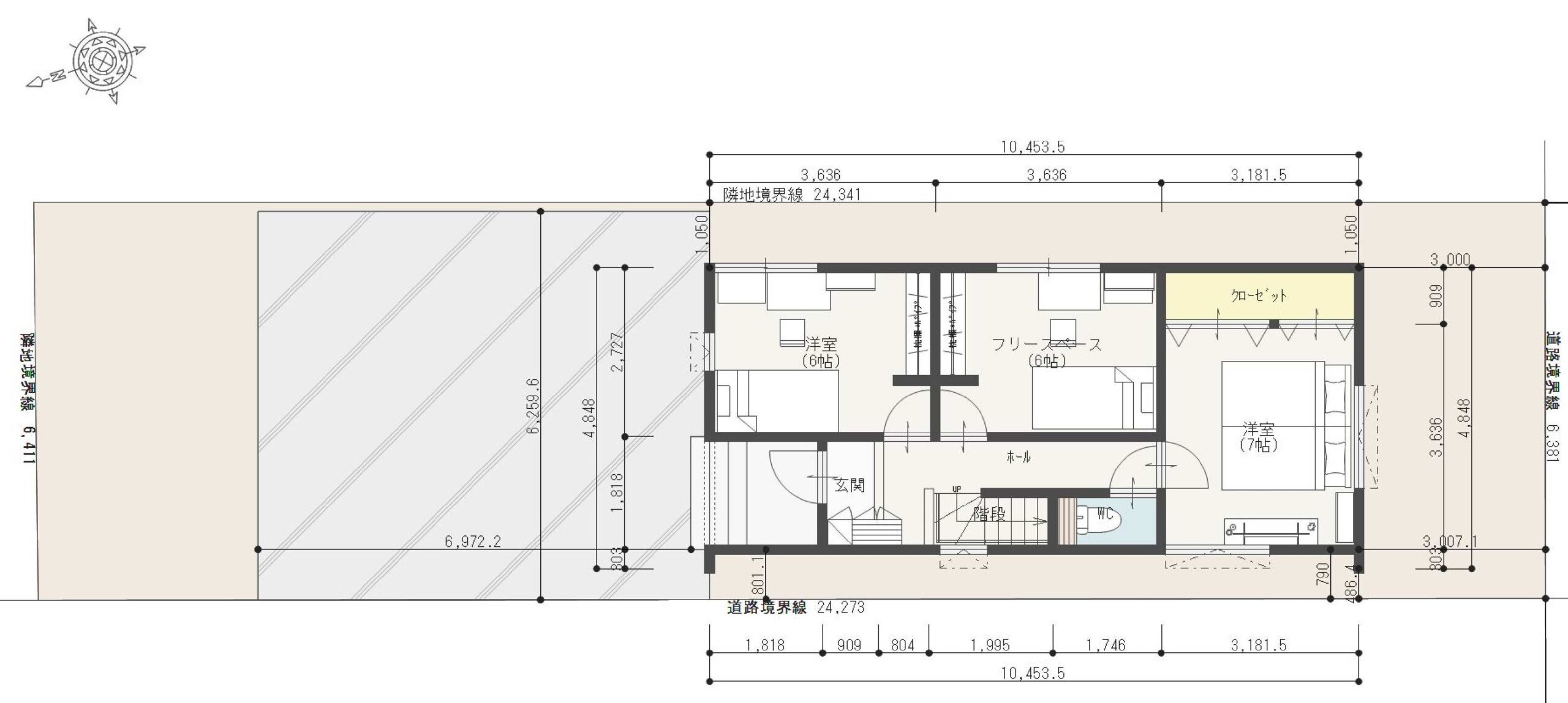
- 91.71㎡(27.74坪)
- 地目
- 宅地
- 間取り
- 2SLDK
- 土地面積
- 154.64㎡(46.77坪)
- 築年月
- 令和8年5月完成予定
- 用途地域
- 第一種住居地域
- 設備
- 電気・水道・都市ガス・公共下水
- 建ぺい率
- 70%(60%+10%)
- 学区
- 中島小学校・東中学校
- 容積率
- 200%
- 取引態様
- 売主
- 接道
- 南側:位置指定道路 5.5m、西側:位置指定道路 4.5m(2方向とも消雪パイプあり)
- 都市計画区分
- 市街化区域
- 物件番号
- 2022012228965
- 最終更新日
- 2026年03月11日
- 最寄り駅/アクセス
JR長岡駅 約1,400m(徒歩18分)
バス停 日赤3丁目 190m(徒歩3分)
- 担当者
詳細はお気軽にお問い合わせください。
担当:沼田
携帯:070-8449-3715
Email:numata@ichidai-k.co.jp
- 特記事項
-
・第三種高度地区
・22条指定区域
※自社売主物件につき仲介手数料不要!
※新築住宅瑕疵保険加入。「新築住宅瑕疵保険は新築住宅の品質問題に備えた
保険です。安心して新築住宅を購入できる保障として重要です。」
※繰り返しの地震に強い「制震」住宅 制震ダンパーMAMORYを採用しています。
「一代工務店の建売住宅は、「マモリー」制震技術を採用し、地震の揺れを大幅に
軽減して、大切な家族を守るお手伝いをします。」
※BELS/建築物省エネ基準適合認定書あり
「BELSは、建物の省エネ性能を評価・表示する制度です。
物件のエネルギー効率を一目で確認でき、省エネライフの参考にすることが
できます。」
※一代工務店の建売住宅は、 土地・建物・消費税・外構工事・照明器具
全てを含んだ完成価格表示です。
≪周辺環境≫
◆幼稚園・保育園・学校
中島小学校…約650m(徒歩9分)
東中学校…約1,400m(徒歩18分)
長生学園中島幼稚園/わくわく保育園…約280m(徒歩4分)
昭和保育園…約1,300m(徒歩17分)
◆お買い物
ウオロク長岡店…約350m(徒歩5分)
セブンイレブン日赤町1丁目店…約500m(徒歩7分)
ドラッグトップス日赤町店…約240m(徒歩3分)
ドラッグセイムス昭和店…約1,100m(徒歩14分)
◆行政・公共施設
中島公園…約350m(徒歩5分)
水道公園…約700m(徒歩9分)
◆交通
JR長岡駅…約1,400m(徒歩18分)
★カーナビ入力:長岡市中島1丁目6-5★
【建築確認番号:NK第25長00511号】
※物件掲載内容と現況に相違がある場合は現況を優先と致します。

担当から一言
●スーパーやコンビニが徒歩圏内でお買い物に便利な立地です♪
●中島小学校、東中学校区の新築2SLDK♪
●広々とした駐車スペースは3台並列駐車できます。
●前面道路には消雪パイプも完備で冬も安心!
●2階LDKは日当たり良好♪開放感のある空間に
●ガス衣類乾燥機「乾太くん」を設置!冬場や花粉の季節の洗濯ストレスを軽減します。
・いくらかかるのか知りたい・・・
・まだ探し始めたばかりなのでまずは話だけ・・・
・自分の希望通りの間取りがまだよく決まっていない・・・
・ローンについて聞いてみたい・・・
どんなご要望でも何なりとお申し付けくださいませ!
お問い合わせ心よりお待ちしております!




























<令和8年5月完成予定>
自社売主物件につき仲介手数料不要!
ZEH Oriented住宅
家族3~4人向け/2SLDK
2階LDK18.8帖/対面キッチン
IHヒーター/3口コンロ
バス1坪以上/オートバス
LDKエアコン設置/室内物干しスペース
ガス衣類乾燥機「乾太くん」
ファミリークローク/独立洗面台
Low-E複層ガラス/玄関北向き
24時間換気システム/制震ダンパー/地盤調査済/駐車場3台分
南側:位置指定道路 5.5m、西側:位置指定道路 4.5m
(2方向とも消雪パイプあり)
中島小学校/東中学校