
建築中
長岡市新保5丁目
新築(建売住宅)2号棟
長岡市新保5丁目9-9付近
物件の概要
- 物件名
- 長岡市新保5丁目 新築(建売住宅)2号棟
- 構造
- 木造合金メッキ鋼板葺2階建
- 販売価格
- 2,850万円(税込)
- 種類
- 居宅
- 所在地
- 長岡市新保5丁目404番9
- 建物面積
- 91.50(27.67坪)
- 地目
- 宅地
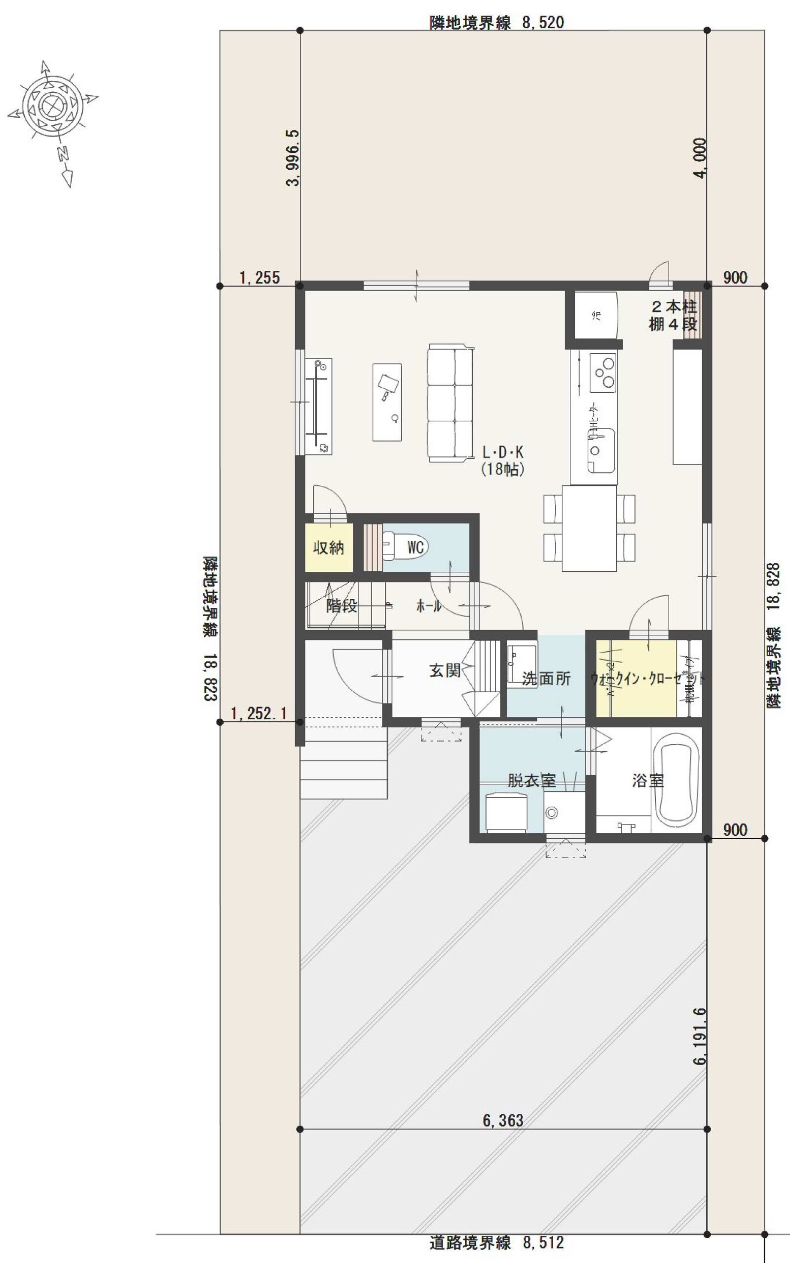
- 間取り
- 3LDK
- 土地面積
- 160.30㎡(48.49坪)
- 築年月
- 令和8年7月完成予定
- 用途地域
- 第一種中高層住居専用地域
- 設備
- 電気・水道・都市ガス・公共下水
- 建ぺい率
- 60%
- 学区
- 富曽亀小学校・東北中学校
- 容積率
- 200%
- 取引態様
- 売主
- 接道
- 北側:位置指定道路 6.0m
- 都市計画区分
- 市街化区域
- 物件番号
- 2022012231012
- 最終更新日
- 2026年04月05日
- 最寄り駅/アクセス
JR信越線 北長岡駅 950m(徒歩12分、車4分)
バス停 新保保育園前 330m(徒歩5分)
- 担当者
詳細はお気軽にお問い合わせください。
担当:高橋
携帯:080-1223-9349
- 特記事項
-
・第二種高度地区
・22条指定区域
※自社売主物件につき仲介手数料不要!
※新築住宅瑕疵保険加入。「新築住宅瑕疵保険は新築住宅の品質問題に備えた
保険です。安心して新築住宅を購入できる保障として重要です。」
※繰り返しの地震に強い「制震」住宅 制震ダンパーMAMORYを採用しています。
「一代工務店の建売住宅は、「マモリー」制震技術を採用し、地震の揺れを大幅に
軽減して、大切な家族を守るお手伝いをします。」
※BELS/建築物省エネ基準適合認定書あり
「BELSは、建物の省エネ性能を評価・表示する制度です。
物件のエネルギー効率を一目で確認でき、省エネライフの参考にすることが
できます。」
※一代工務店の建売住宅は、 土地・建物・消費税・外構工事・照明器具
全てを含んだ完成価格表示です。
≪周辺環境≫
◆幼稚園・保育園・学校
富曽亀小学校…950m(徒歩12分、車3分)
東北中学校…1600m(徒歩20分、車5分)
新保保育園…500m(徒歩7分、車2分)
◆お買い物
ローソン長岡新保店…800m(徒歩10分、車3分)
原信新保店…350m(徒歩5分、車2分)
チャレンジャー北長岡店…850m(徒歩11分、車4分)
ドラッグトップス新保店…300m(徒歩4分、車2分)
クスリのアオキ長岡川崎店…900m(徒歩12分、車3分)
◆医療
七條胃腸科内科医院…250m(徒歩4分、車1分)
大関医院…1000m(徒歩13分、車4分)
◆行政・公共施設
新保お宮の森公園…80m(徒歩1分)
◆金融機関
大光銀行新保支店…750m(徒歩10分、車3分)
新潟県労働金庫長岡北支店…900m(徒歩12分、車3分)
◆交通
JR北長岡駅…950m(徒歩12分、車4分)
★カーナビ入力:長岡市新保5丁目9-9付近★
【建築確認番号:NK第25長00794号】
※物件掲載内容と現況に相違がある場合は現況を優先と致します。

担当から一言
◆スーパー・コンビニ・ドラッグストア・駅・病院が身近にそろう、暮らしやすい立地。
◆前面道路に消雪パイプを備え、冬も安心。
◆LDKは3面採光の明るく開放的な空間。
◆1階・2階にウォークインクローゼットを配置。使う場所にしまえる、スムーズな動線設計。
◆洗面台を脱衣室と分離し、プライバシーに配慮。帰宅後すぐに手洗い・うがいができる動線。



























<令和8年7月完成予定>
自社売主物件につき仲介手数料不要!
ZEH Oriented住宅
家族3~4人向け/3LDK
LDK18帖/対面キッチン
IHヒーター/3口コンロ
バス1坪以上/オートバス
LDKエアコン設置/室内物干しスペース
ウォークインクローゼット(1階・2階)
Low-E複層ガラス/玄関東向き
24時間換気システム/制震ダンパー
地盤調査済/駐車場2台分
北側:位置指定道路 6.0m
富曽亀小学校/東北中学校