
建築中
長岡市宮原2丁目
新築(建売住宅)
長岡市宮原2丁目7-22
物件の概要
- 物件名
- 長岡市宮原2丁目 新築(建売住宅)
- 構造
- 木造合金メッキ鋼板葺2階建
- 販売価格
- 2,980万円(税込)
- 種類
- 居宅
- 所在地
- 長岡市宮原2丁目366番19
- 建物面積
- 91.71㎡(27.74坪)
- 地目
- 宅地
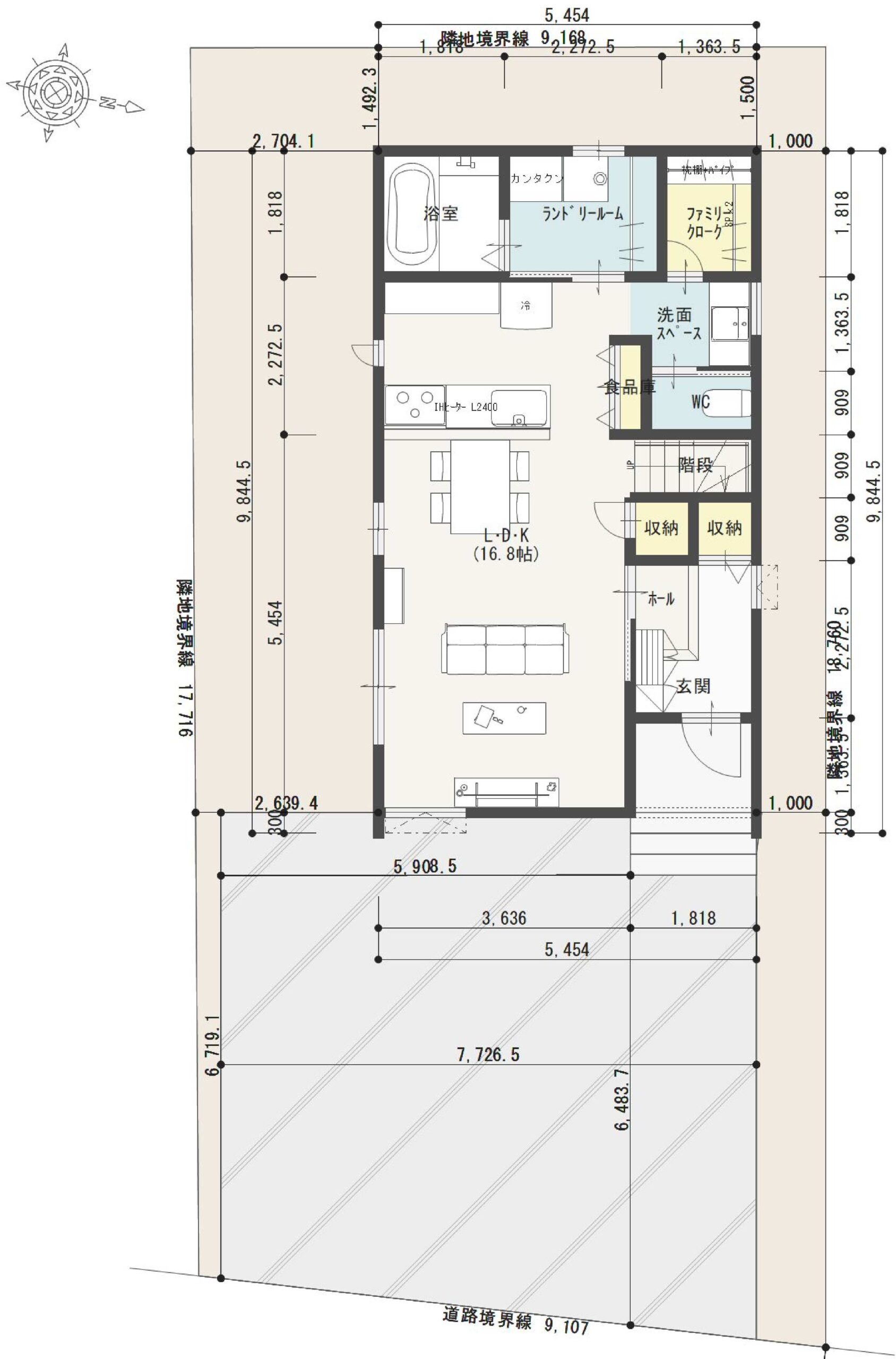
- 間取り
- 3LDK
- 土地面積
- 165.80㎡(50.15坪)
- 築年月
- 令和8年7月完成予定
- 用途地域
- 第一種住居地域
- 設備
- 電気・水道・都市ガス・公共下水
- 建ぺい率
- 60%
- 学区
- 千手小学校・南中学校
- 容積率
- 200%
- 取引態様
- 売主
- 接道
- 東側:市道 5.7m(消雪パイプあり)
- 都市計画区分
- 市街化区域
- 物件番号
- 2022012231965
- 最終更新日
- 2026年04月05日
- 最寄り駅/アクセス
JR長岡駅 1,800m(徒歩23分、車8分)
バス停 幸町 180m(徒歩3分)
- 担当者
詳細はお気軽にお問い合わせください。
担当:高橋
携帯:080-1223-9349
- 特記事項
-
●前面道路消雪パイプ完備
●法22条指定区域
●第三種高度地区
※自社売主物件につき仲介手数料不要!
※新築住宅瑕疵保険加入。「新築住宅瑕疵保険は新築住宅の品質問題に備えた
保険です。安心して新築住宅を購入できる保障として重要です。」
※繰り返しの地震に強い「制震」住宅 制震ダンパーMAMORYを採用しています。
「一代工務店の建売住宅は、「マモリー」制震技術を採用し、地震の揺れを大幅に
軽減して、大切な家族を守るお手伝いをします。」
※BELS/建築物省エネ基準適合認定書あり
「BELSは、建物の省エネ性能を評価・表示する制度です。
物件のエネルギー効率を一目で確認でき、省エネライフの参考にすることが
できます。」
※一代工務店の建売住宅は、 土地・建物・消費税・外構工事・照明器具
全てを含んだ完成価格表示です。
≪周辺環境≫
◆幼稚園・保育園・学校
千手小学校…850m(徒歩11分、車3分)
南中学校…850m(徒歩11分、車3分)
三和保育園…130m(徒歩2分、車1分)
◆お買い物
セブンイレブン市立劇場前…190m(徒歩3分、車1分)
ローソン幸町店…500m(徒歩7分、車2分)
クスリのアオキ西千手店…600m(徒歩8分、車2分)
原信シビックコア店…500m(徒歩7分、車3分)
◆医療
杉本内科医院…1000m(徒歩13分、車4分)
野村こどもクリニック…650m(徒歩9分、車2分)
◆行政・公共施設
三和公園…130m(徒歩2分)
防災公園…850m(徒歩11分、車5分)
子育ての駅ぐんぐん…850m(徒歩11分、車5分)
◆金融機関
第四北越銀行長岡南支店…190m(徒歩3分、車1分)
長岡三和郵便局…240m(徒歩3分、車1分)
◆交通
JR長岡駅…1800m(徒歩23分、車8分)
★カーナビ入力:長岡市宮原2丁目7-22★
【建築確認番号:NK第25長00770号】
※物件掲載内容と現況に相違がある場合は現況を優先と致します。

担当から一言
◆商業施設、病院、学校、保育園が近く、利便性のとれた好立地。
◆前面道路には消雪パイプ完備。
◆ガス衣類乾燥機「乾太くん」設置。冬場や花粉の季節でも洗濯ストレスを軽減。
◆1階トイレには、すっきりとしたデザインのタンクレストイレを採用。
◆洗面スペースには、デザイン性の高いアイカの造作洗面台。
◆ウォークインクローゼットやファミリークローク、食品庫など収納スペースが充実。
































<令和8年7月完成予定>
自社売主物件につき仲介手数料不要!
ZEH Oriented住宅
家族3~4人向け/3LDK
LDK16.8帖/対面キッチン
IHヒーター/3口コンロ/食品庫
ガス衣類乾燥機「乾太くん」設置
バス1坪以上/オートバス
LDKエアコン設置/室内物干しスペース
ファミリークローク/造作洗面台
ウォークインクローゼット
Low-E複層ガラス/玄関東向き
24時間換気システム/制震ダンパー/地盤調査済
駐車場3台分/東側:市道 5.7m(消雪パイプあり)
千手小学校/南中学校