
建築中
三条市曲渕3丁目
新築(建売住宅)②
物件の概要
- 物件名
- 三条市曲渕3丁目 新築(建売住宅)②
- 構造
- 木造合金メッキ鋼板葺2階建
- 販売価格
- 2,390万円(税込)
- 種類
- 居宅
- 所在地
- 三条市曲渕3丁目137番16
- 建物面積
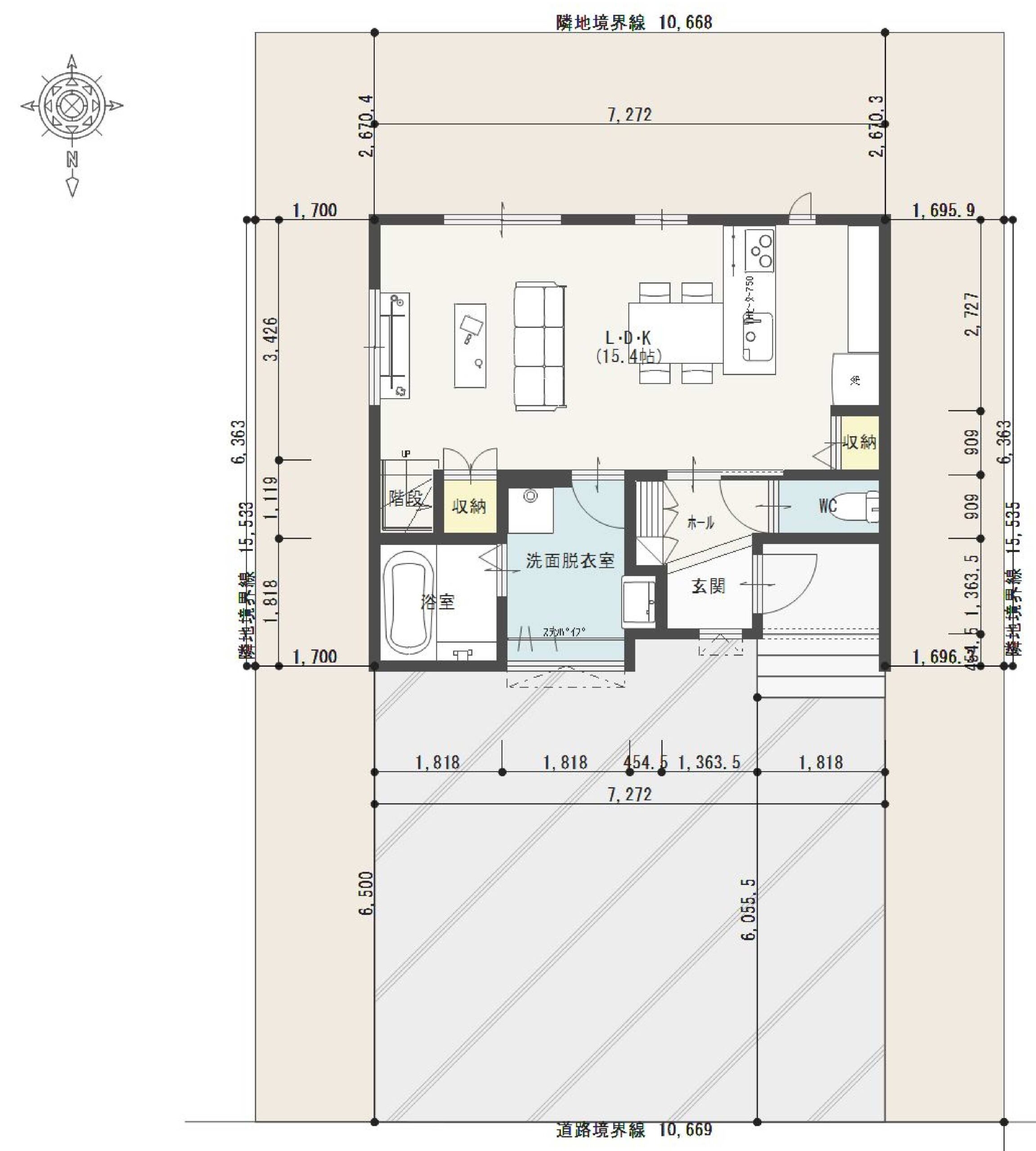
- 86.75㎡(26.24坪)
- 地目
- 宅地
- 間取り
- 3LDK
- 土地面積
- 165.72㎡(50.13坪)
- 築年月
- 令和8年3月完成予定
- 用途地域
- 第一種低層住居専用地域
- 設備
- 電気・水道・都市ガス・浄化槽
- 建ぺい率
- 50%
- 学区
- 月岡小学校・本成寺中学校
- 容積率
- 100%
- 取引態様
- 売主
- 接道
- 北側:市道 6.0m(消雪パイプあり)
- 都市計画区分
- 非線引き区域
- 物件番号
- 2021072927469
- 最終更新日
- 2026年01月12日
- 最寄り駅/アクセス
JR信越線 三条駅 1,400m(徒歩18分)
バス停 曲渕2丁目 360m(徒歩5分)
- 担当者
詳細はお気軽にお問い合わせください。
担当:小林
携帯:090-1438-1795
E-mail:y-kobayashi@ichidai-k.co.jp
- 特記事項
-
・22条指定区域
・高さ制限:10m
・外壁後退:1.5m
・消雪パイプ管理費:20,000円/年
※自社売主物件につき仲介手数料不要!
※新築住宅瑕疵保険加入。「新築住宅瑕疵保険は新築住宅の品質問題に備えた
保険です。安心して新築住宅を購入できる保障として重要です。」
※繰り返しの地震に強い「制震」住宅 制震ダンパーMAMORYを採用しています。
「一代工務店の建売住宅は、「マモリー」制震技術を採用し、地震の揺れを大幅に
軽減して、大切な家族を守るお手伝いをします。」
※BELS/建築物省エネ基準適合認定書あり
「BELSは、建物の省エネ性能を評価・表示する制度です。
物件のエネルギー効率を一目で確認でき、省エネライフの参考にすることが
できます。」
※一代工務店の建売住宅は、 土地・建物・消費税・外構工事・照明器具
全てを含んだ完成価格表示です。
≪周辺環境≫
■ウオロク 東新保店
・・・・1,000m(徒歩13分)
■スーパーマルイ 三条月岡店
・・・・1,000m(徒歩13分)
■ファミリーマート 三条新保店
・・・・1,100m(徒歩14分)
■セブンイレブン 三条月岡店
・・・・1,400m(徒歩18分)
■ツルハドラッグ 三条東新保店
・・・・950m(徒歩12分)
■マツモトキヨシ 三条東新保店
・・・・1,000m(徒歩13分)
■ウエルシア三条新保店
・・・・1,300m(徒歩17分)
■パワーコメリ三条四日町店
・・・・2,200m(徒歩28分)
■カワイ(総菜・お肉屋)
・・・・850m(徒歩11分)
■ケーズデンキ三条東新保店
・・・・1,000m(徒歩13分)
■スターバックスコーヒー 三条東新保店
・・・・850m(徒歩11分)
■三条信用金庫 月岡支店
・・・・750m(徒歩10分)
■聖公会聖母こども園
・・・・750m(徒歩10分)
■三条市立月岡保育所
・・・・1,500m(徒歩19分)
■月岡保育所 子育て支援センター
・・・・1,500m(徒歩19分)
■三条市立月岡小学校
・・・・500m(徒歩7分)
■三条市立本成寺中学校
・・・・2,100m(徒歩27分)
■三条市総合運動公園
・・・・2,300m(徒歩29分)
★カーナビ入力:三条市曲渕3丁目17付近★
【建築確認番号:NK第25長00080号】
※物件掲載内容と現況に相違がある場合は現況を優先と致します。
建売住宅とは|注文住宅・分譲住宅との違いやメリット・デメリットを解説

担当から一言
◆商業施設やスーパーが徒歩圏内に充実していて生活に便利な立地です。
◆月岡小学校・こども園も徒歩圏内。お子様も安心の環境です。
◆前面道路は消雪パイプが設置されていますので、冬も安心です。
◆LDKは15.4帖と広々とした間取り♪対面キッチンでご家族とのコミュニケーションも取りやすくなっています。
◆洗濯機と物干し場を一緒にし、重い洗濯物を運ぶことなく干せ、家事効率UP!
◆4帖のウォークインクローゼットは、家族みんなの衣類や荷物をまとめて収納できる大容量サイズです。




































<令和8年3月完成予定>
自社売主物件につき仲介手数料不要!
ZEH Oriented住宅
家族3~4人向け/3LDK
LDK15.4帖/対面キッチン
IHヒーター/3口以上コンロ
室内物干しスペース
ウォークインクローゼット
Low-E複層ガラス/玄関西向き/エコジョーズ
バス1坪以上/LDKエアコン設置
24時間換気システム/制震ダンパー/地盤調査済
駐車場2台分/北側:市道6.0m(消雪パイプあり)
月岡小学校/本成寺中学校