
長岡市前田1丁目
新築(建売住宅)2号棟
パノラマ動画
物件の概要
- 物件名
- 長岡市前田1丁目 新築(建売住宅)2号棟
- 構造
- 木造合金メッキ鋼板葺2階建
- 販売価格
- 2,699万円(税込)
- 種類
- 居宅
- 所在地
- 長岡市前田1丁目97番
- 建物面積
- 91.71㎡(27.74坪)
- 地目
- 田(現況:宅地)
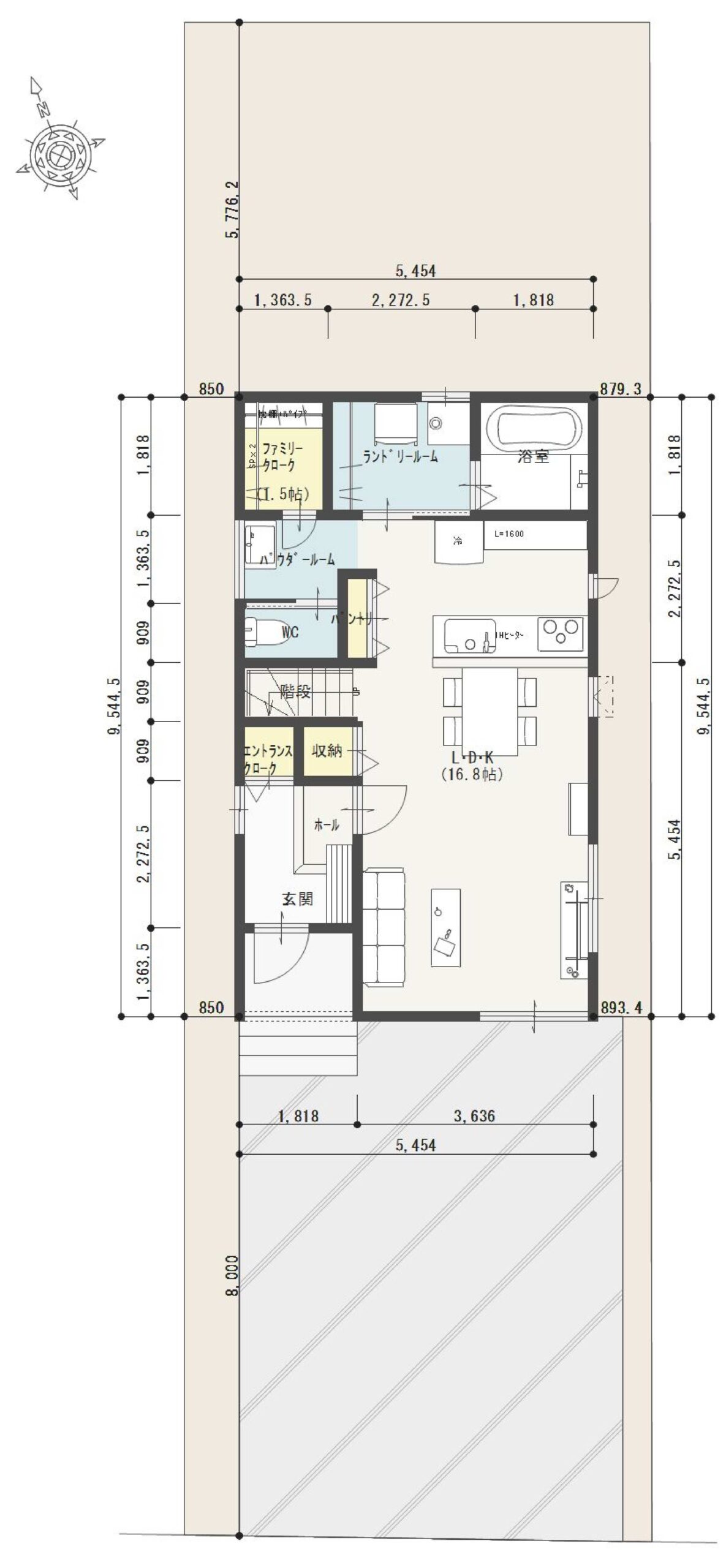
- 間取り
- 3LDK
- 土地面積
- 168㎡(50.82坪)
- 築年月
- 令和8年1月完成
- 用途地域
- 第一種低層住居専用地域
- 設備
- 電気・水道・都市ガス・公共下水
- 建ぺい率
- 50%
- 学区
- 四郎丸小学校・南中学校
- 容積率
- 100%
- 取引態様
- 売主
- 接道
- 南側:市道 5.8m
- 都市計画区分
- 市街化区域
- 物件番号
- 2026011627182
- 最終更新日
- 2026年01月30日
- 最寄り駅/アクセス
JR信越線 長岡駅 1,700m(徒歩22分)
バス停 前田町 190m(徒歩3分)
- 担当者
詳細はお気軽にお問い合わせください。
担当:高橋
携帯:080-1223-9349
- 特記事項
-
・第一種高度地区
・22条指定区域
・高さ制限:10m
・外壁後退:なし
※自社売主物件につき仲介手数料不要!
※新築住宅瑕疵保険加入。「新築住宅瑕疵保険は新築住宅の品質問題に備えた
保険です。安心して新築住宅を購入できる保障として重要です。」
※繰り返しの地震に強い「制震」住宅 制震ダンパーMAMORYを採用しています。
「一代工務店の建売住宅は、「マモリー」制震技術を採用し、地震の揺れを大幅に
軽減して、大切な家族を守るお手伝いをします。」
※BELS/建築物省エネ基準適合認定書あり
「BELSは、建物の省エネ性能を評価・表示する制度です。
物件のエネルギー効率を一目で確認でき、省エネライフの参考にすることが
できます。」
※一代工務店の建売住宅は、 土地・建物・消費税・外構工事・照明器具
全てを含んだ完成価格表示です。
≪周辺環境≫
■ スーパーマルイ 学校町店
・・・・450m(徒歩6分)
■ 原信 花園店
・・・・750m(徒歩10分)
■セブンイレブン 長岡土合店
・・・・900m(徒歩12分)
■ココカラファイン 長岡花園店
・・・・750m(徒歩10分)
■長岡花園郵便局
・・・・650m(徒歩9分)
■長岡市民文化公園
・・・・450m(徒歩6分)
■長岡市市民体育館
・・・・600m(徒歩8分)
■長岡市立中央図書館
・・・・900m(徒歩12分)
■認定こども園 東部マドカ保育園
・・・・500m(徒歩7分)
■長岡市立四郎丸小学校
・・・・650m(徒歩9分)
■長岡市立南中学校
・・・・1,800m(徒歩23分)
★カーナビ入力:長岡市前田1丁目2-5付近★
※物件掲載内容と現況に相違がある場合は現況を優先と致します。
建売住宅とは|注文住宅・分譲住宅との違いやメリット・デメリットを解説
長岡市で購入するなら建売住宅or中古住宅or注文住宅?特徴・価格相場・選び方を紹介

担当から一言
◆スーパー、コンビニ徒歩圏内でお買い物にも便利な立地です!
◆四郎丸小学校、保育園も徒歩圏内でお子様の通学も安心です。
◆ランドリールームには乾太くんを設置。ファミリークロークも隣接してあり、洗濯から片付けまで楽々です。
◆脱衣室と分かれた洗面台で、気兼ねなく使える設計です。プライバシーにも配慮しました。
◆7帖の洋室は季節物の衣類もスッキリ収納できるウォークインクローゼット付きです。
◆ファミリークロークの近くのパウダールームは、お化粧とあわせて着替えもできる効率的な間取りです。
◆エントランスクロークやパントリーもあり、収納力豊富で住空間もスッキリです!


























































VR住宅360°バーチャル見学会をご覧頂けます。
自社売主物件につき仲介手数料不要!
ZEH Oriented住宅
家族3~4人向け/3LDK
LDK16.8帖/対面キッチン
IHヒーター/3口以上コンロ
パントリー/室内物干しスペース/パウダールーム
ウォークインクローゼット/ファミリークローク
Low-E複層ガラス/玄関南向き/エコジョーズ
バス1坪以上/オートバス/LDKエアコン設置
ガス衣類乾燥機「乾太くん」設置/庭
24時間換気システム/制震ダンパー/地盤調査済
駐車場2台分/南側:市道 5.8m
四郎丸小学校/南中学校