
建築中
燕市吉田西太田
新築(建売住宅)3号棟
燕市吉田西太田276-15付近
物件の概要
- 物件名
- 燕市吉田西太田 新築(建売住宅)3号棟
- 構造
- 木造合金メッキ鋼板葺2階建
- 販売価格
- 2,380万円(税込)
- 種類
- 居宅
- 所在地
- 燕市吉田西太田字札木276番16
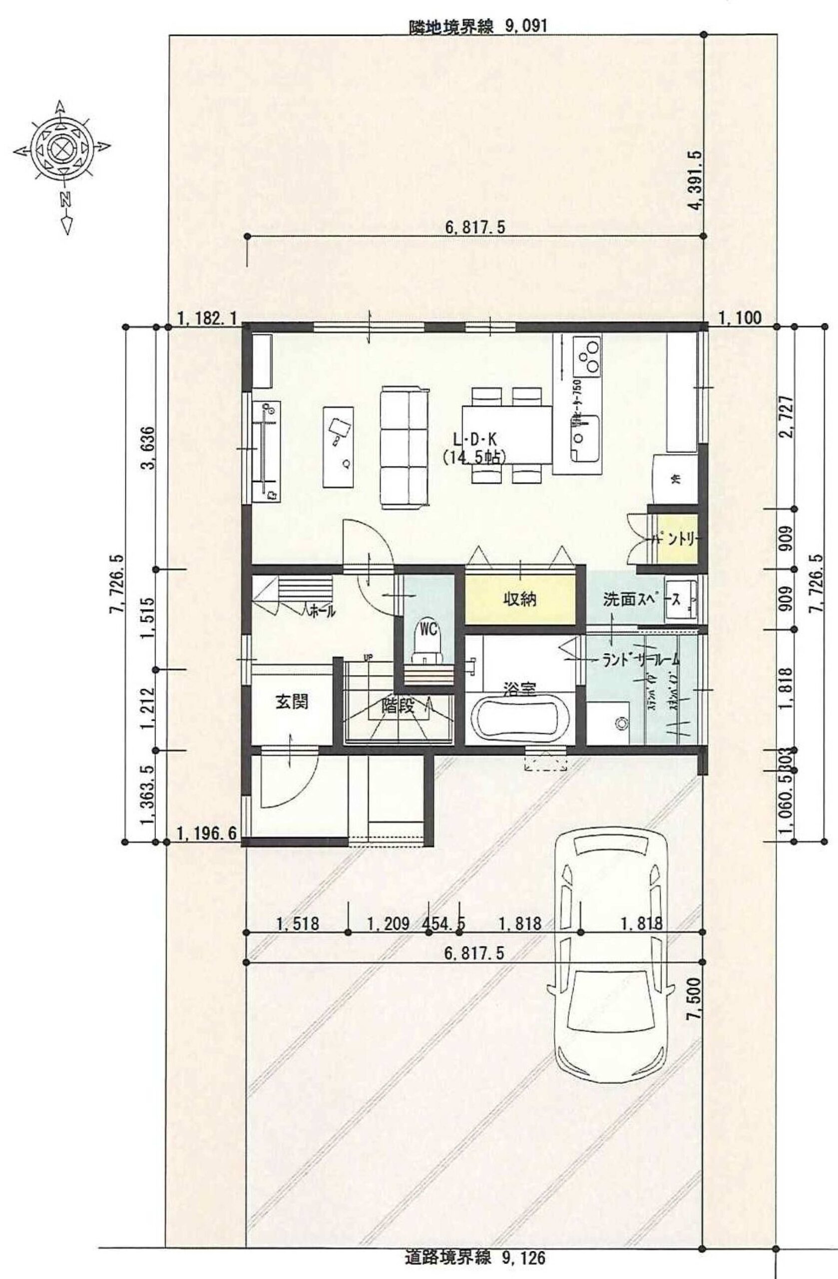
- 建物面積
- 86.74㎡(26.23坪)
- 地目
- 畑(現況:宅地)
- 間取り
- 3LDK
- 土地面積
- 165㎡(49.91坪)
- 築年月
- 令和8年6月完成予定
- 用途地域
- 第一種住居地域
- 設備
- 電気・水道・都市ガス・公共下水
- 建ぺい率
- 60%
- 学区
- 吉田南小学校・吉田中学校
- 容積率
- 200%
- 取引態様
- 売主
- 接道
- 北側:市道 5.0m(消雪パイプあり)
- 都市計画区分
- 非線引き区域
- 物件番号
- 2021072931245
- 最終更新日
- 2026年04月05日
- 最寄り駅/アクセス
JR越後線 南吉田駅 550m(徒歩7分)
バス停 南吉田駅 560m(徒歩7分)
- 担当者
詳細はお気軽にお問い合わせください。
担当:竹之内
携帯:090-7815-6720
E-mail:takenouchi@ichidai-k.co.jp
- 特記事項
-
※自社売主物件につき仲介手数料不要!
※新築住宅瑕疵保険加入。「新築住宅瑕疵保険は新築住宅の品質問題に備えた
保険です。安心して新築住宅を購入できる保障として重要です。」
※繰り返しの地震に強い「制震」住宅 制震ダンパーMAMORYを採用しています。
「一代工務店の建売住宅は、「マモリー」制震技術を採用し、地震の揺れを大幅に
軽減して、大切な家族を守るお手伝いをします。」
※BELS/建築物省エネ基準適合認定書あり
「BELSは、建物の省エネ性能を評価・表示する制度です。
物件のエネルギー効率を一目で確認でき、省エネライフの参考にすることが
できます。」
※一代工務店の建売住宅は、 土地・建物・消費税・外構工事・照明器具
全てを含んだ完成価格表示です。
≪周辺環境≫
■ウオロク吉田店
・・・・1,000m(徒歩13分、車3分)
■原信吉田店
・・・・1,600m(徒歩20分、車4分)
■セブンイレブン燕吉田西太田店
・・・・700m(徒歩9分、車2分)
■ウエルシア燕西太田店
・・・・850m(徒歩11分、車3分)
■クスリのコダマ吉田南店
・・・・1,000m(徒歩13分、車3分)
■コメリハード&グリーン吉田店
・・・・1,100m(徒歩14分、車3分)
■三条信用金庫吉田支店
・・・・2,100m(徒歩27分、車6分)
■きららにこにここども園、地域子育て支援センターにこにこ
・・・・750m(徒歩10分、車2分)
■燕市立吉田南小学校
・・・・850m(徒歩11分、車3分)
■燕市立吉田中学校
・・・・3,800m(徒歩48分、車10分)
★カーナビ入力:燕市吉田西太田276-15付近★
【建築確認番号:NK第24長01154号】
※物件掲載内容と現況に相違がある場合は現況を優先と致します。
建売住宅とは|注文住宅・分譲住宅との違いやメリット・デメリットを解説

担当から一言
◆小学校や商業施設が徒歩圏内に充実していて生活に便利な立地♪
◆前面道路には消雪パイプがありますので、冬も安心です。
◆白と木目調の外観がつくる、明るくやさしい佇まいの建売住宅。
◆南側リビングの光あふれる空間に、LDK収納とパントリーを備えた、心地よい暮らし。
◆南側のお庭スペースは、植物の栽培やお子様の遊び場など、多用途に使えるお庭スペース。





























<令和8年6月完成予定>
自社売主物件につき仲介手数料不要!
ZEH Oriented住宅
家族3~4人向け/3LDK
LDK14.5帖/対面キッチン
IHヒーター/3口コンロ
バス1坪以上/オートバス
LDKエアコン設置/室内物干しスペース
独立洗面台/エコジョーズ
Low-E複層ガラス/玄関北向き
24時間換気システム/制震ダンパー/地盤調査済
駐車場2台分/北側:市道 5.0m(消雪パイプあり)
吉田南小学校/吉田中学校