
新着
長岡市千歳3丁目
新築(建売住宅) 2号棟
長岡市千歳3丁目5番13号
物件の概要
- 物件名
- 長岡市千歳3丁目 新築(建売住宅) 2号棟
- 構造
- 木造合金メッキ鋼板葺2階建
- 販売価格
- 2,980万円(税込)
- 種類
- 居宅
- 所在地
- 長岡市千歳3丁目390番1
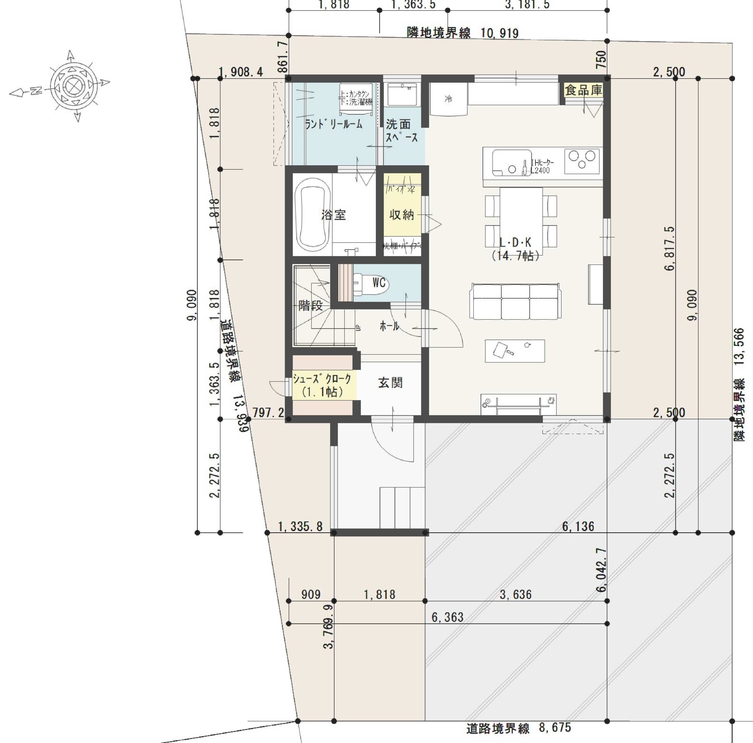
- 建物面積
- 86.74㎡(26.23坪)
- 地目
- 宅地
- 間取り
- 3LDK
- 土地面積
- 133.73㎡(40.45坪)
- 築年月
- 令和8年5月完成
- 用途地域
- 第一種住居地域
- 設備
- 電気・水道・都市ガス・公共下水
- 建ぺい率
- 70%(60%+10%)
- 学区
- 千手小学校・南中学校
- 容積率
- 200%
- 取引態様
- 売主
- 接道
- 西側:市道 4.9m、北側:市道 22m(2方向とも消雪パイプあり)
- 都市計画区分
- 市街化区域
- 物件番号
- 2026050830039
- 最終更新日
- 2026年05月08日
- 最寄り駅/アクセス
JR長岡駅 1,100m(徒歩14分)
バス停 千手1丁目 270m(徒歩4分)
- 担当者
詳細はお気軽にお問い合わせください。
担当:藤崎
携帯:090-2763-5443
Email:fujisaki@ichidai-k.co.jp
- 特記事項
-
・第三種高度地区
・22条指定区域
※自社売主物件につき仲介手数料不要!
※新築住宅瑕疵保険加入。「新築住宅瑕疵保険は新築住宅の品質問題に備えた
保険です。安心して新築住宅を購入できる保障として重要です。」
※繰り返しの地震に強い「制震」住宅 制震ダンパーMAMORYを採用しています。
「一代工務店の建売住宅は、「マモリー」制震技術を採用し、地震の揺れを大幅に
軽減して、大切な家族を守るお手伝いをします。」
※BELS/建築物省エネ基準適合認定書あり
「BELSは、建物の省エネ性能を評価・表示する制度です。
物件のエネルギー効率を一目で確認でき、省エネライフの参考にすることが
できます。」
※一代工務店の建売住宅は、 土地・建物・消費税・外構工事・照明器具
全てを含んだ完成価格表示です。
≪周辺環境≫
■ 長岡シビックコアショッピングセンター
・・・・600m(徒歩8分)
■ 原信シビックコア店
・・・・600m(徒歩8分)
■ローソン長岡幸町店
・・・・450m(徒歩6分)
■セブンイレブン長岡旭町店
・・・・700m(徒歩9分)
■クスリのアオキ千歳店
・・・・450m(徒歩6分)
■長岡宮原郵便局
・・・・550m(徒歩7分)
■長岡信用金庫千手支店
・・・・280m(徒歩4分)
■長岡市民防災公園
・・・・250m(徒歩4分)
■子育ての駅 ぐんぐん
・・・・150m(徒歩2分)
■南部保育園
・・・・500m(徒歩7分)
■認定こども園長生幼稚園・まんまる
・・・・750m(徒歩10分)
■長岡市立千手小学校
・・・・550m(徒歩7分)
■長岡市立南中学校
・・・・150m(徒歩2分)
★カーナビ入力:長岡市千歳3丁目5番13号★
※物件掲載内容と現況に相違がある場合は現況を優先と致します。
建売住宅とは|注文住宅・分譲住宅との違いやメリット・デメリットを解説
長岡市で購入するなら建売住宅or中古住宅or注文住宅?特徴・価格相場・選び方を紹介

担当から一言
◆千手小学校・南中学校エリアの物件です。
◆長岡駅まで徒歩圏内の物件です。
◆近隣には、原信シビックコア店や防災公園などあり便利で安心なエリアです。
◆北西角地の物件で、2方の前面道路とも消雪パイプが設置されています。
◆対面キッチンのリビングは14.7帖となっています。
◆脱衣室には乾太くんが設置されています。
◆寝室に2.6帖のウォークインクローゼットが付いています。








































自社売主物件につき仲介手数料不要!
ZEH Oriented住宅
家族3~4人向け/3LDK
LDK14.7帖/対面キッチン
IHヒーター/3口コンロ
バス1坪以上/オートバス/独立洗面台
LDKエアコン設置/室内物干しスペース
ガス衣類乾燥機「乾太くん」設置
Low-E複層ガラス/玄関西向き
24時間換気システム/制震ダンパー/地盤調査済
駐車場2台分/角地
西側:市道 4.9m、北側:市道 22m(2方向とも消雪パイプあり)
千手小学校/南中学校